Продается строящийся 2 эт. кирпичный дом в г. Котлас на ул. Водников (БПК).
Стоимость (с участком): 5 716 355 руб.
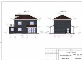
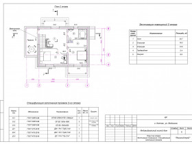
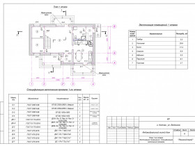
Продается строящийся 2 эт. кирпичный дом 134 м2 жилой площади с участком на ул. Водников (БПК) - классный современный проект с продуманной планировкой дома в 2 этажа с баней внутри дома и террасой на втором этаже.
Что сделано с участком: есть разрешение на строительство, участок поднят, отсыпан грунтом и песком, есть фундамент, скважина с водой глубина 24 метра, очень большой запас воды, поставлена новая опора с электричеством, куплен септик (ещё не смонтирован) - входит в стоимость, останется подвести газ к построенному дому, газ проходит рядом с участком.
Всё рядом: магазины, остановки, садики и школы.
С проектной документацией и сметой на строительство дома можно ознакомиться ниже.
Строительство фундамента на участке (ул. Водников, БПК).
Монтаж скважины
Пример (начало стройки в Коряжме, дом сдан 30 апреля 2022 г.).
Прикреплённые файлы
Остались вопросы?
Получите бесплатную консультацию у наших менеджеров
Свяжитесь с нами
Телефон: +7 (958) 100-49-03
Адрес: г. Котлас, ул. Маяковского, 12б, 3 этаж
E-mail: regstdir@yandex.ru
ИНН: 2904027779
Адрес: г. Котлас, ул. Маяковского, 12б, 3 этаж
E-mail: regstdir@yandex.ru
ИНН: 2904027779
Отправьте сообщение
Наши менеджеры свяжутся с вами для обсуждения деталей